Skip to product information
RESIDENTIAL PROJECTS

RESIDENTIAL PROJECTS

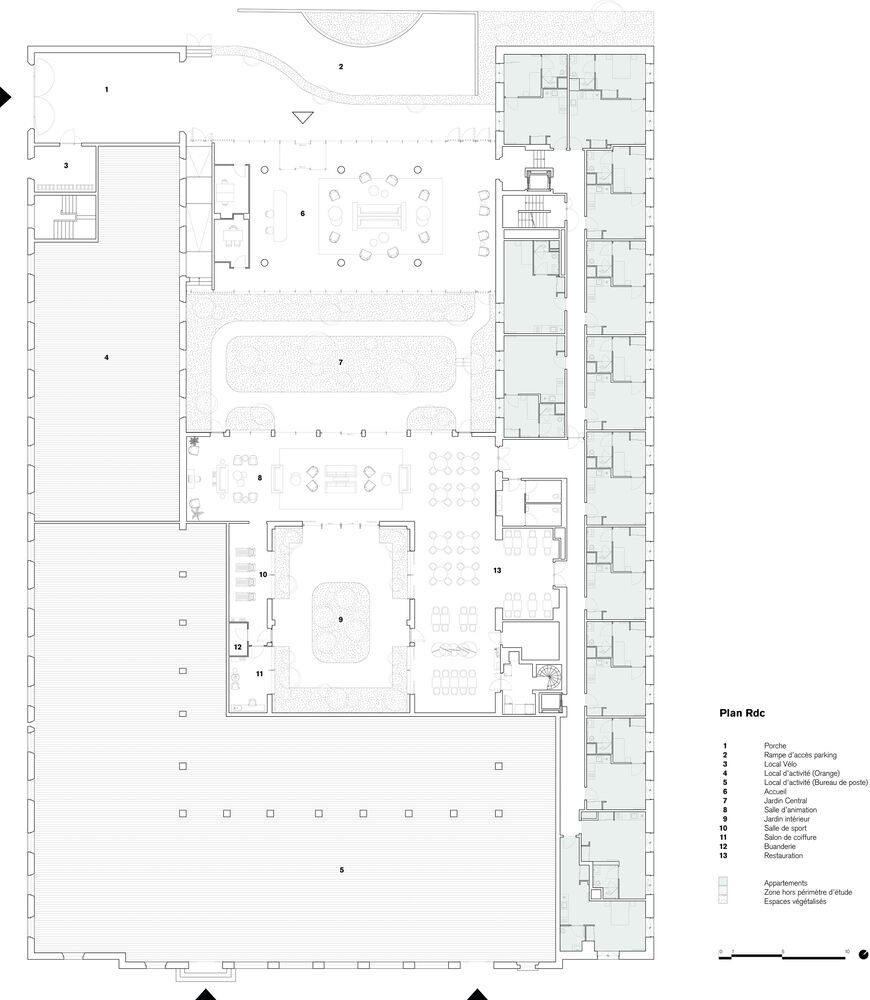
The renovation of the Brest Post Office by Chatillon Architectes marks the third iteration of the historic city-center building. Originally built in 1927 as an Art Deco-style post office by architect Georges Milineau, the building was destroyed during the Second World War and subsequently rebuilt between 1947 and 1950. Initially designed with a U-shaped structure, the building has now been expanded by Chatillon Architectes, adding a contemporary new wing, creating a central entrance courtyard, and an enclosed inner garden. Now operating as a senior residence, the project offers city-center living and has revitalized a long-standing local landmark. Using the building's history to guide its renewal, Chatillon Architectes has worked to restore, transform, and add new elements that honor the building's legacy while providing an experience suited to contemporary life.